通风设备产业网

首页
供应
招标
求购
企业库
资讯
展会
人才
当前位置: 首页>产品>空调设备类>新风机组>天津走水立式暗装风柜厂家
手机
浏览
天津走水立式暗装风柜厂家
价格:60871.00元/件
物流:
品牌:骏安达
更新日期:2020-05-24
产品详细说明



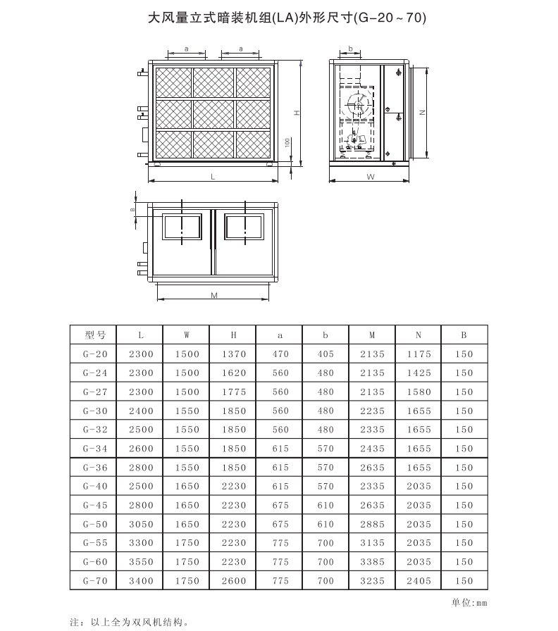
LA-大风量立式暗装机组


此型机组适用于布置在机房内。尽管机组处理的风量大,但由于结构设计紧凑,机组的高度及占地面积都得到了有效的控制,机内出风口处专门设有消声箱,有效的降低了机组运行时的噪声。



■ 概述:
骏安达立式、卧式、吊顶式空调机组,由过滤器、高效热交换器、低噪声风机、框架及面板组成,主要用于对空调区域进行温、湿度的处理及空气的净化,是中央空调系统的主要末端设备,广泛适用于宾馆、剧院、商场、酒店、办公楼等各种场合,并可满足电子、化纤、纺织、卷烟、制药、医疗、食品、轻工等各行业空调配置的需要。
JLFP系列空调机组是我公司经过多年的研究和发展,采用先进的CADCAM技术,针对降低噪声和节约能源进行精心设计制造而成。它汇集了国内外同类产品的优点,结构合理,外形美观,性能优越,质量可靠,拆装方便,寿命长,是目前国内外具有先进水平的空调设备。
立式系列机组一般适用于落地安装,吊顶式系列机组一般用于吊式安装;可暗藏于吊顶内;卧式系列机组根据需要既可落地安装又可吊式安装。
柜式空调机组的水侧工作压力为1.6 MPa



■ 产品品种:
为适应国内不同地区不同用户及不同场合的需要,本公司生产的柜式空调机组系列分别有:卧式暗装、立式暗装、立式明装、吊顶式等,此外,还可根据用户要求,生产特殊规格产品。



您可能感兴趣的产品